|
 |
| |
中药静态提取生产线 |
|
| |
|
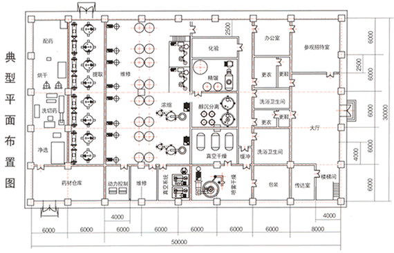
| 中药静态提取生产工艺图 |
中药静态提取生产线
我公司制造的制药设备有其独特优点,符合国家(GMP)提取完全隔断,操作人员在一层隔断外操作,既安全,又不受热气侵害,全套设计合理、投资少、效率高、维修率低、有安全装置。 |
|
| 型号 |
DMCS-1 |
DMCS-2 |
DMCS-3 |
DMCS-4 |
DMCS-5 |
DMCS-6 |
| 多功能提取罐 |
0.3m3 |
0.5m3 |
1m3 |
3m3 |
5m3 |
6m3 |
| 冷却冷凝器 |
2m2 |
3.4m2 |
3.4m2 |
7m2 |
10m2 |
12m2 |
| 防爆离心泵 |
25FB-16 |
25FB-16 |
25FB-16 |
40FB-16 |
25FB-16 |
40FB-16 |
| 翅片过滤器 |
1m2 |
1m2 |
2m2 |
1m2 |
3m2 |
3m2 |
| 计量罐、药液罐 |
500LX2 |
700LX2 |
1500LX2 |
3500LX2 |
3500LX2 |
5000LX2 |
| 外循环浓缩锅 |
100kg/h |
200kg/h |
500kg/h |
1000kg/h |
1500kg/h |
2000kg/g |
| 醇沉罐 静置罐 |
0.5m3 |
0.5m3 |
1m3 |
2m3×2 |
3m3×2 |
3m3×3 |
| 精馏塔 |
20L/h |
50L/h |
50L/h |
100L/h |
200L/h |
300L/h |
| 真空干燥器 |
8m2 |
16m2 |
24m2 |
32m2 |
32m2×2 |
32m2×3 |
| 喷雾干燥器 |
5Kg/h |
5Kg/h |
10Kg/h |
75Kg/h |
150Kg/h |
150Kg/h |
| 射流真空泵 |
ZSL-60 |
ZSL-100 |
ZSL-200 |
ZSL-300 |
ZSL-300 |
ZSL-300 |
| 全无油空压机 |
VW-0.11/7 |
VW-0.11/7 |
VW-0.11/7 |
VW-0.3/7 |
VW-0.3/7 |
VW-0.3/7 |
| 冷却塔 |
GBLN3-30 |
GBLN3-30 |
GBLN3-50 |
GBLN3-100 |
GBLN3-150 |
GBLN3-150 |
|
|
|
| |
|
|
|
|
|