| |
简 介 |
|
|
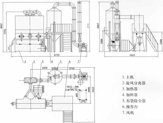
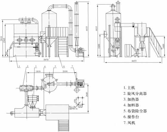
| 沸腾干燥器,又称流化床。我国从一九六三年开始使用。二十多年来,不断地改进提高,目前在制药、化工、食品、粮食加工方面,越来越体现了它的重要作用。它是由空气过滤器、加热器、沸腾床主机、加料器、旋风分离器、布袋除尘器、高压离心通风机、操作台组成。由于干燥物料的性质不同,配套除尘设备时,可按需要而进行,可同时选择旋风分离器、布袋除尘器、也可选择其中的一种。一般来说,比重较大的物料只需选择旋风分离器。比重较轻的物料需配套布袋除尘器,并备有气力送料装置供选择。 |
干燥原理 |
|
|
沸腾干燥器是利用经过滤后的洁净空气,经热交换器对流换热,使空气温度上升到一定的温度进入主机分风筒,经阀板分配进入沸腾器,湿物料从加料器进入干燥器。由于风力作用,物料在干燥器内形成沸腾状态,热空气与物料进行广泛接触,增强了传热传质过程,在较短的时间内促使物料中的水份蒸发分离,本设备一般都进行负压操作。
|
加热方法 |
|
|
| 蒸气、电、热风炉均可配用。(按用户要求配套) |
应用范围 |
|
|
适用于医药药品、化工原料、食品、粮食加工、饲料的干燥作业。
如:原料药、压片颗粒、中药冲剂、食品饮料冲剂、玉米胚芽、饲料、塑料树脂、柠檬酸和其它粉状、颗粒状物料的干燥除湿。适用物料粒径一般为0.1~6mm,最佳粒径为0.5~3mm。 |
安装说明 |
|
|
沸腾干燥器在安装时的关键在于各连接部位必须用密封条,填片相隔,以保持不漏气。如果漏气,将严重影响沸腾效果。
为了避免风机噪音,用户可把风机放在消音室内(用户自建)。 安装时,旋风分离器,布袋除尘器,风机的安装位置根据厂房位置可变。 |
应用实例 |
|
|
| 江阴市西郊食品厂、常熟市天然饮料食品厂是生产保健食品冲剂饮料的厂家,原使用摇摆式颗粒机及箱式干燥物料进行制粒后烘干,由于工人劳动强度大,物料缺少经常翻动和连续干燥,干燥时间长,因此干燥后的物料质量不能保证。现采用我厂生产的XF20A型沸腾干燥后,干燥后的成品质量好,产量也成倍增加,劳动强度减少,能进行连续式干燥,干燥速度快,温度低,实行了自动化生产,所以深受用户好评,是理想的干燥设备。 |
主要技术参数 |
|
|
技术参数 |
床层面积 |
干燥能力(水) |
风机功率 |
风压 |
风量 |
进风温度 |
物料温度 |
最大能耗 |
占地面积 |
加料型式 |
型号 |
m2 |
kg/h |
kw |
pa |
m3/h |
℃ |
℃ |
j |
m2 |
1.加料式
2.加料式和气力输送并用 |
XF20A |
0.5 |
20-25 |
7.5 |
5.8×103 |
2360 |
60-140 |
40-60 |
2.6×108 |
25 |
XF20B |
0.5 |
20-25 |
7.5 |
5.8×103 |
2360 |
60-140 |
40-60 |
2.6×108 |
20 |
XF30A |
1.0 |
30-45 |
11 |
5.1×103 |
3860 |
60-140 |
40-60 |
5.2×108 |
35 |
XF50A |
2.0 |
55-90 |
18.5 |
6.5×103 |
5400 |
60-140 |
40-60 |
10.4×108 |
45 |
XF80A |
4.0 |
100-180 |
30 |
6.1×103 |
7940 |
60-140 |
40-60 |
20×108 |
60 |
|
XF-20A型沸腾干燥器 |
|
|
|
XF-20B型沸腾干燥器 |
|
|
|
XF-30A型沸腾干燥器 |
|
|
|
XF-50A型沸腾干燥器 |
|
|
|
|