联系我们
>>> 制粒设备类 - - - FL系列沸腾制粒机
 
工作原理  

    沸腾制粒机是喷雾技术和流化技术综合的结果,传统的混合—制粒—干燥在同一封闭容器内一次完成、实现一步法制粒,原料粉末在床内建立流态化,同时将粘合剂雾滴喷至流化界面成粒,挥发水份随排风带出机外。

用  途  

    药品造粒及包衣

    造粒:压片颗粒、冲剂颗粒、胶囊用颗粒

    包衣:颗粒、丸剂保护层、备色缓释、薄膜、肠溶包衣

    食品造粒及包衣

    砂糖、咖啡、可可粉末、奶油、粉末果汁、氨基酸、调味料、膨化食品

    农药、颜料色素、染料造粒

    粉状、颗粒、块状物料干燥


特  点  
     通过粉体造粒、改善流动性、减少粉尘飞扬

     通过粉体造粒改善其溶解性能

     混合—制粒—干燥—在一机内完成一步法制粒

     采用抗静电滤布,设备操作安全

     设置压力泄放孔,一旦发生爆炸,人员不受伤害

     设备无死角,装卸料轻便快速、冲洗方便,符合“GMP”规范。

     自动化程度高,备有程序控制,模拟屏显示等技术供用户选择。

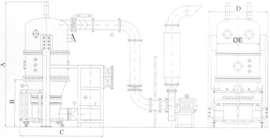
主要技术参数  
项目
单位
3
5
15
30
45
60
90
120
150
200
300
500
容器容量
12
22
45
100
155
200
300
420
530
670
1000
1500
沸腾能力
(kg/批)
最小
1.5
4
10
15
25
30
60
80
90
100
150
300
最大
3.5
6
20
45
50
70
100
130
160
220
300
500
粘合剂比重
≤1.2
风机功率
kw
2.2
3
4
5.5
7.5
11
15
18.5
22
22
30
45
蒸汽耗量
kg/h
70
99
140
170
211
250
282
366
451
电加热
kw
9
9
18
压缩空气耗量
m3/min
0.3
0.3
0.3
0.4
0.5
0.6
0.6
0.9
1.1
1.3
1.5
2.0
产品终水份
%
≤0.2
作业温度
环境温度(20℃)-120℃自控
产品收得率
%
≥99
噪音
db
风机隔墙安装≤75分贝
安装
参考尺寸
A
mm
2100
2100
2100
2555
2700
3000
3100
3546
3546
3792
4000
4200
B
mm
838
838
900
1040
1040
1195
1250
1334
1334
1530
1630
1730
C
mm
1280
1280
1400
1600
1750
1950
2000
2250
2300
2750
3010
3250
D
mm
630
730
990
1110
1300
1440
1550
1660
1760
1860
2060
2300
E
mm
300
400
550
700
850
1000
1100
1200
1300
1400
1600
1800
   
江阴市干燥设备制造有限公司 版权所有(C)2003
网络支持 中国化工网 ChemNet.com 网盛科技
首页 公司概况 荣誉证书 产品中心 商务定单 化工e圈 联系我们