联系我们
>>> 制粒设备类 - - - PGL-B系列喷雾干燥制粒机
 
主要用途  

    本机适用于中成药浸膏制冲剂、片剂用颗粒和西药、食品固体速溶饮料以及有机或无机化工产品、塑料、化肥、染料、饲料等各种物料的制粒干燥作业。

设备特点  

    集混合、喷雾干燥、制粒、颗粒包衣多功能于一体

    可进行微辅料、小剂量、低糖或无糖制剂造粒

    成品颗粒速溶、片剂易崩解

    利用液态物料作为润湿粘合剂、可节约酒精

    设备于密闭负压下工作,内表面光洁、无死角、符合“GMP”要求

    自动化程度高,备有模糊控制、模拟屏显示等技术供用户选择

型号说明  

选型例  

    要求每批次浸膏处理量120kg(含固量30%)种子量60kg理论成品量:120×30%+60=96kg

    工作时间 120kg÷40kg/h=3小时

    技术参数表中可选用PGL40型每班完成2批次。

主要技术参数  
项目
单位
PGL3B
PGL5B
PGL10B
PGL20B
PGL40B
PGL80B
PGL120B
流浸膏处理量
kg/h
2-4
4-6
5-15
10-20
20-40
60-100
100-120
每批沸腾能力
kg
2-6
6-15
10-30
30-60
80-120
100-200
150-300
流浸膏比重
1.2
料斗容积
22
30
100
220
400
680
1000
主风机功率
kw
3.0
5.5
7.5
11
18.5
22
30
辅风机功率
kw
0.35
0.75
0.75
1.1
2.2
2.2
4
蒸汽耗量
(P=0.4-0.6MPa)
kg/h
电9kw
电9kw
99
210
300
366
465
40
70
压缩空气耗量
(P=0.4-0.5MPa)
m3/min
0.4
0.5
0.6
0.9
1.1
1.3
1.8
作业温度
环境温度(20℃)-120℃自控
产品终水份
%
≤0.2
产品收得率
%
≥99
噪音
db
引风机隔墙安装≤75分贝
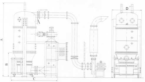
安装参考尺寸
A
mm
2120
2640
3060
3715
4152
4590
5800
B
mm
838
900
1040
1195
1300
1540
1630
C
mm
1200
1400
1350
2350
2600
2900
3400
D
mm
730
990
1180
1440
1660
1860
2060
E
mm
400
550
770
1000
1200
1400
1600
   
江阴市干燥设备制造有限公司 版权所有(C)2003
网络支持 中国化工网 ChemNet.com 网盛科技
首页 公司概况 荣誉证书 产品中心 商务定单 化工e圈 联系我们