| |
概 述 |
|
|
|
| MC-II方型脉冲布筒滤尘器是在MC-I型的基础上经改进修改而成的,它除了具有I型除尘效率高、处理风量大、性能稳定、操作维修方便等特点外,还具有比I型使用效果好、不易积粉、应用范围广等特点,广泛适用于粮食食品、饲料、冶金化工、建材、医药等行业的通风除尘和粉尘回收。 |
装配形式 |
|
|
|
技术参数 |
|
|
参数\型号 |
MC24 |
MC36 |
MC48 |
MC60 |
MC72 |
MC84 |
MC96 |
MC120 |
过滤面积 |
18 |
27 |
36 |
45 |
54 |
63 |
72 |
90 |
滤袋数量(只) |
24 |
36 |
48 |
60 |
72 |
84 |
96 |
120 |
过滤风速(M/m) |
2-4 |
2-4 |
2-4 |
2-4 |
2-4 |
2-4 |
2-4 |
2-4 |
过滤风量(m3/h) |
2160-4300 |
3250-6480 |
4320-8630 |
5400-10800 |
6450-12900 |
7550-15100 |
8650-17300 |
10800-20800 |
最大外形尺寸
mm |
长 |
1025 |
1425 |
1820 |
2225 |
2625 |
3025 |
3585 |
4385 |
| 宽×高 |
1678×3660 |
清灰装置 |
脉冲阀数量 |
4 |
6 |
8 |
10 |
12 |
14 |
16 |
20 |
| 耗用压缩空气量(m3) |
0.07-0.15 |
0.11-0.22 |
0.15-0.30 |
0.18-0.37 |
0.22-0.44 |
0.25-0.50 |
0.29-0.56 |
0.37-0.73 |
| 压缩空气压力(kg/cm3) |
5-7(≥4) |
|
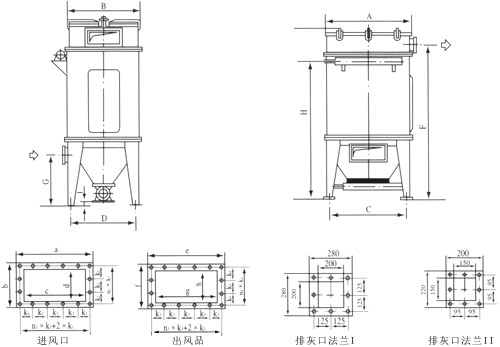
安装示意图 |
|
|

注:进风口,出风口及排灰口法兰钻孔均为 |
主要尺寸 |
|
|
参数\型号 |
MC24 |
MC36 |
MC48 |
MC60 |
MC72 |
MC84 |
MC96 |
MC120 |
A |
1000 |
1400 |
1800 |
2200 |
2600 |
3000 |
3560 |
4360 |
B |
1450 |
C |
780 |
1180 |
1600 |
2000 |
2400 |
1400+1400 |
1670+1670 |
2080+2080 |
D |
1230 |
E |
3660 |
F |
3410 |
G |
1000 |
H |
3050 |
I |
140 |
a |
476 |
576 |
876 |
876 |
1076 |
676 |
776 |
876 |
b |
336 |
376 |
c |
400 |
500 |
800 |
800 |
1000 |
600×2 |
700×1 |
800×2 |
d |
260 |
300 300×2 |
e |
576 |
576 |
876 |
876 |
1076 |
1276 |
1326 |
1436 |
f |
276 |
376 |
g |
500 |
500 |
800 |
800 |
1000 |
1200 |
1250 |
1360 |
h |
200 |
300 |
K1×n1
K1×2 |
110×4=440 |
108×5=540 |
120×7=840 |
120×7=840 |
120×7+100×2=1040 |
110×4+100×2=640 |
110×5
95×2=740 |
120×7=840 |
K2×n2 |
150×2=300 |
113.3×3=340 |
K3×n3
K3×2 |
108×5=540 |
108×5=540 |
120×7=840 |
120×7=840 |
120×7+100×2=1040 |
124×10=1240 |
120×9+105×2=1290 |
120×10+100×2=1400 |
K4×n4 |
120×2=240 |
113.3×3=340 |
排灰口法兰 |
I |
I |
II |
II |
II |
II |
II |
II |
|
|